Closed
Listed by Coldwell Banker Realty

Sold by Allied Realty
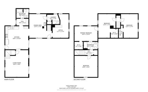
* BACK ON THE MARKET DUE TO BUYER FINANCING FALLING THROUGH * This property has met FHA inspection requirements. This beautifully renovated farmhouse next to the elementary school and downtown Athens is situated on 1 acre and located 20 minutes from Skowhegan. Complete with new wiring, new plumbing, new windows and doors, new appliances , original wood floors recently re-done, and new flooring put in upstairs and downstairs in the living room this home is ready for you to move right in! A new farmers porch was put on 2 years ago offering additional outdoor space for front porch rocking, sitting, or BBQ'ing,! The septic has been very recently inspected and a report is available. Dont worry about losing power, a whole home generac generator was installed recently and will also be conveying. If you're looking for a home you can grow old in, this is the one!

Property Details of 18 Fox Hill Road

Property Details

Interior Features

Utilities and Appliances

Other Details

Map Location

Driving Directions

Listing data is derived in whole or in part from the Maine IDX & is for consumers' personal, non commercial use only. Dimensions are approximate and not guaranteed. All data should be independently verified. ©2025 Maine Real Estate Information System, Inc. All Rights Reserved. equal opportunity housing logo   Privacy Policy

The NH-Maine Homes Team Keller Williams Coastal and Lakes & Mountains Realty participates in ©2025 Maine Listings Internet Data Exchange program, allowing us to display other Maine IDX Participants' listings. This website does not display complete listings. Certain listings of other real estate brokerage firms have been excluded. Mortgage figures are estimates. Check with your bank or proposed mortgage company for actual interest rates. This product uses the FRED® API but is not endorsed or certified by the Federal Reserve Bank of St. Louis.

Hi there! How can we help you?

Contact us using the form below or give us a call.

Send Us A Message:

I agree to receive marketing and customer service calls and text messages from Keller Williams Coastal and Lakes & Mountains Realty. To opt out, you can reply 'stop' at any time or click the unsubscribe link in the emails. Consent is not a condition of purchase. Msg/data rates may apply. Msg frequency varies. Privacy Policy.

Do not fill in this field:

This site is protected by reCAPTCHA and the Google Privacy Policy and Terms of Service apply.

Hi there! How can we help you?

Contact us using the form below or give us a call.

Send Us A Message:

Do not fill in this field:

This site is protected by reCAPTCHA and the Google Privacy Policy and Terms of Service apply.

Hi there! How can we help you?

Contact us using the form below or give us a call.

Send Us A Message:

Do not fill in this field:

This site is protected by reCAPTCHA and the Google Privacy Policy and Terms of Service apply.

Do not fill in this field:

This site is protected by reCAPTCHA and the Google Privacy Policy and Terms of Service apply.

Do not fill in this field:

This site is protected by reCAPTCHA and the Google Privacy Policy and Terms of Service apply.

Do not fill in this field:

This site is protected by reCAPTCHA and the Google Privacy Policy and Terms of Service apply.

$

Do not fill in this field:

This site is protected by reCAPTCHA and the Google Privacy Policy and Terms of Service apply.